列出待售的商业或商业物业

如欲列出待售或出租的商业或商业物业,请提交询价表或联系总裁Bruce Liang进行免费评估和咨询。

bruce liang

Bruce Liang, P.Eng, M.Sc

(403) 539-9980 / (780) 665-5229
LIANG Commercial
Century 21 Bravo Realty
3009 23 St NE, Calgary, AB T2E 7A4
 11220 119 St NW, Edmonton, AB T5G 2X3
Email Realtor

购买商业地产

Enoch Lui
enochlui@liangcommercial.ca
Dan Duong
danduong@liangcommercial.ca
Quentin Wang
quentinwang@liangcommercial.ca
Thai Banh
thaibanh@liangcommercial.ca
Elton Lui
elton-lui@liangcommercial.ca
Kellie Rodriguez
kellierodriguez@liangcommercial.ca
Gurprit Sidhu
gurpritsidhu@liangcommercial.ca
Sydney Eng
sydneyeng@liangcommercial.ca
Jason Lamer
jasonlamer@liangcommercial.ca
$1,450,000.00 0 Sq.ft

1927 1929 1931 McCaskill Drive , Crossfield. T0M0C1

Description

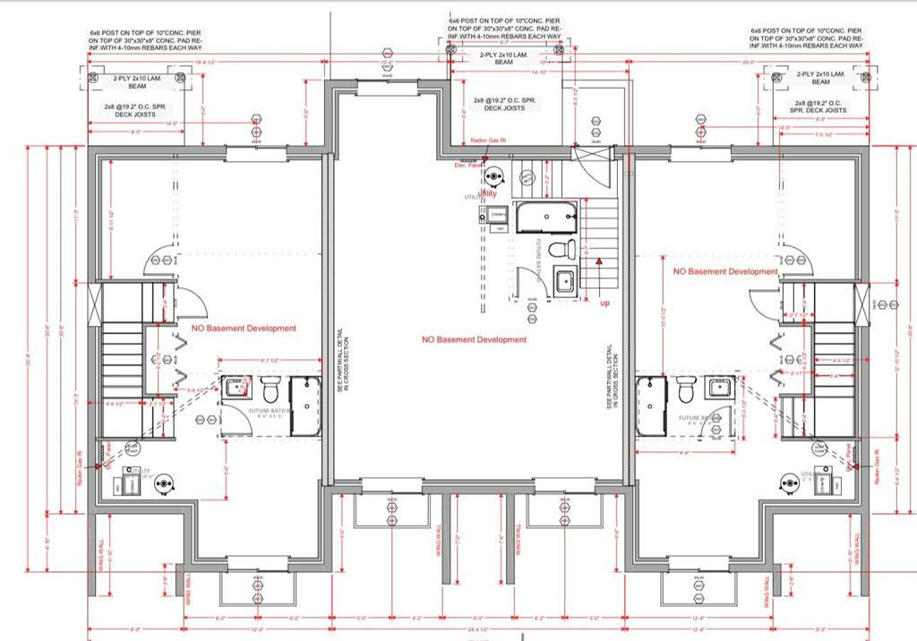
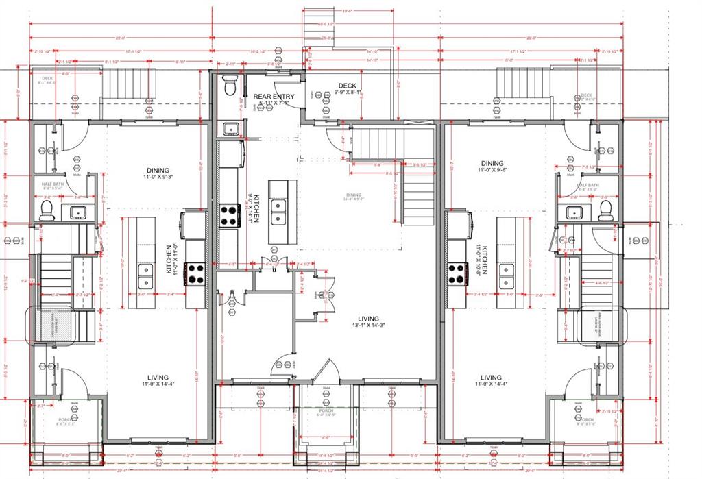
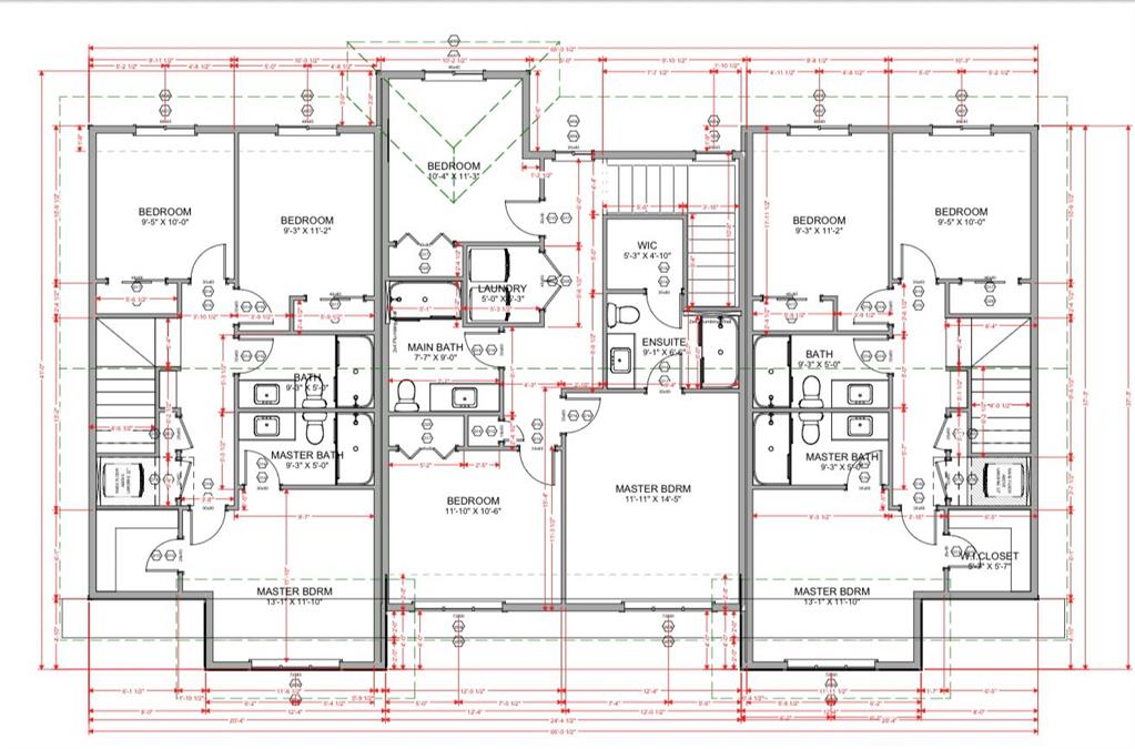
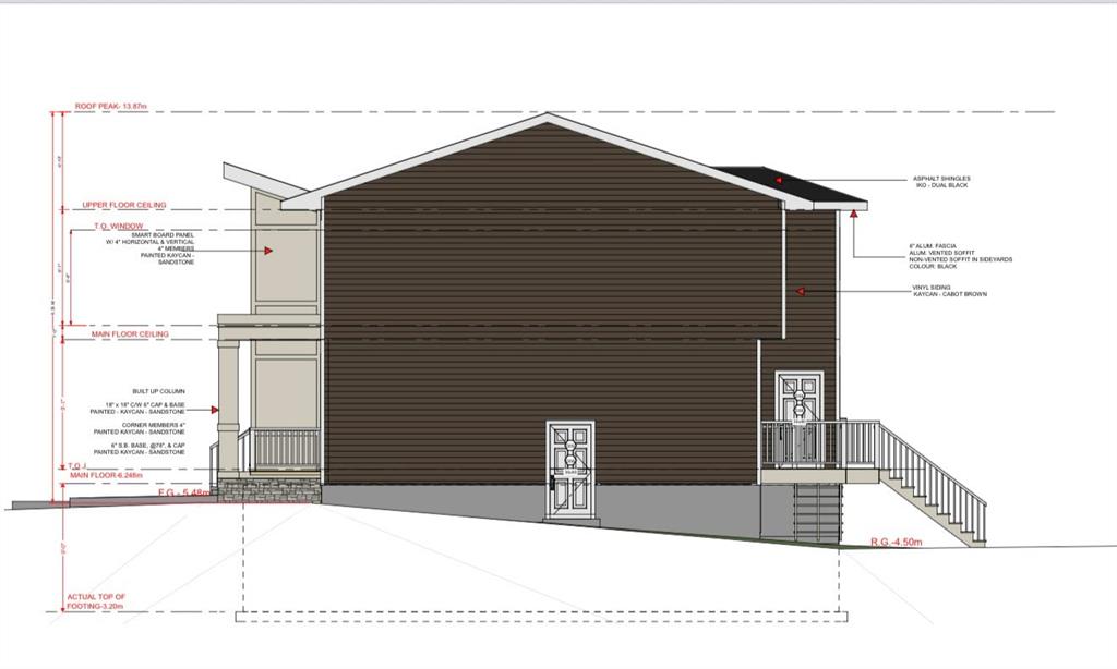
Enhance your real estate portfolio with this new construction triplex in the Town of Crossfield AB that is under construction and scheduled for completion in the end of 2025. This purpose-built investment property consists of three buildings featuring each unit has a spacious 3 bedrooms and 2.5 bathrooms, modern kitchen and island, the middle unit has an office on the main floor, front porch and back yards. Well designed space both side units are 1305 square feet and middle unit total 1,543 square feet as per plans. A total 6 cars parking pads with lane access provides added convenience and tenant appeal. All units have separate side entrances to the basement. Crossfield is a quiet and rapidly growing town which has well rated one elementary and one high school, day care, golf course parks, playgrounds, and other amenities. Strategically located near Airdrie, Balzac, 30 minutes to Calgary Airport and close to Highway 2 for commuting.

Listing Information

Prop. Type:Multi-Family
Status:Active
MLS #:A2257619
City:Crossfield
Neighbourhood:NONE
Province:Alberta
Building/Unit Size: 0 sq.ft
Land Size:0.00 Acre
Listing Price:$1,450,000.00
Lease Rate: $0.00
Business Type:
Property Subtype:Triplex
Transaction Type:For Sale
Land Use Code:R3
Listing Contract Date:2025-09-16

For fast response, please email us via the “Inquiry Via Email” button with your contact information.

To purchase a business or property, please visit "Our People", to find a commercial expert who specializes in the type of business or property you are looking for, speaks your language, and has an office in your city.

This listing is presented by CENTURY 21 BRAVO REALTY, courtesy of "Insta Realty" listing brokerage.

Google map