108, 1310 Kingsway Avenue SE, Medicine Hat. T1A 2Y4
Description
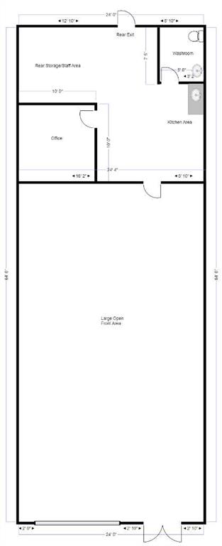
Looking for a great retail space in Medicine Hat? This space in Kingsway Crossing has been thoughtfully decorated, has loads of natural light including a skylight, a large front retail area with change rooms, rear storage area with kitchenette, office, washroom and rear entrance from rear parking lot, plus is professionally managed by a locally licensed firm. Starting at $15.00NNN plus $7.50/sq.ft. estimated occupancy costs per annum or $2,880.00 plus GST, per month, plus separately metered utilities. Average monthly utilities are $250.00 plus GST. Available immediately! Five year lease term preferred including an annual escalation.
Listing Information
For fast response, please email us via the “Inquiry Via Email” button with your contact information.
Listing MLS#:A2211841
108, 1310 Kingsway Avenue SE,
Medicine Hat. T1A 2Y4
Liang Commercial Real Estate
To purchase a business or property, please visit "Our People", to find a commercial expert who specializes in the type of business or property you are looking for, speaks your language, and has an office in your city.
This listing is presented by CENTURY 21 BRAVO REALTY, courtesy of "TMV PROPERTY GROUP LTD." listing brokerage.
Google map



