103, 10104 97 Avenue , Grande Prairie. T8V 7X6
Description
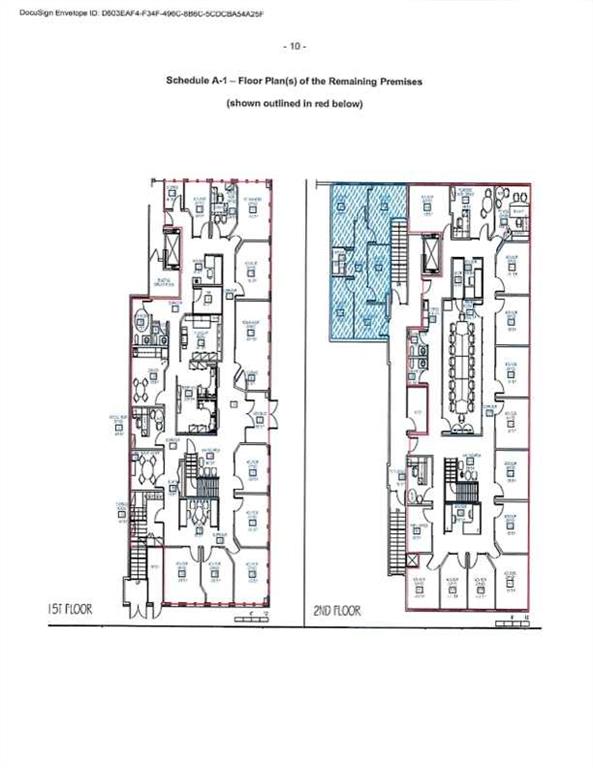
8,137sf of exceptional office space available in the heart of the downtown central business district. This well-designed property offers both main floor and upper level, with elevator and central interior stairway access to the second floor. The layout features 27 private offices - most with large exterior windows, 2 spacious boardrooms, an inviting main floor reception area, 4 washrooms, 2 kitchenettes, several open workspace/waiting/bullpen areas, a mail/copier room, a data room, and storage rooms - providing everything needed for a functional and professional workspace. Ideally suited for professional services, corporate offices, or businesses seeking a strong downtown presence. There is an abundance of parking here with a large city parking lot adjacent to the parking area for this building. NNN Lease: Base rent $13,561.67+ GST. Additional Rent $6,251.36+ GST includes condo fees, taxes. Tenant is responsible for utilities. This space could be divided into separate upper/lower units if desired.
Listing Information
For fast response, please email us via the “Inquiry Via Email” button with your contact information.
Listing MLS#:A2249607
103, 10104 97 Avenue ,
Grande Prairie. T8V 7X6
Liang Commercial Real Estate
To purchase a business or property, please visit "Our People", to find a commercial expert who specializes in the type of business or property you are looking for, speaks your language, and has an office in your city.
This listing is presented by CENTURY 21 BRAVO REALTY, courtesy of "RE/MAX Grande Prairie" listing brokerage.
Google map



