5018 2 Street W, Claresholm. T0L0T0
Description
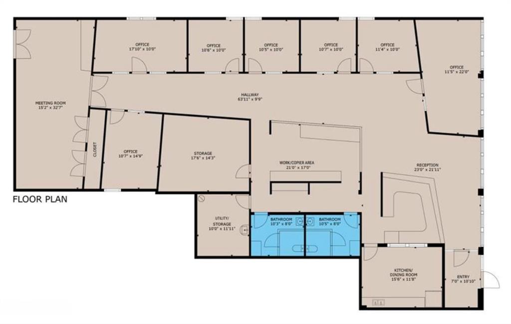
Excellent leasing opportunity in the heart of downtown Claresholm! This well-maintained office/retail building offers flexible space ideal for a variety of professional and commercial uses including professional offices, retail services, medical or wellness clinics, consulting businesses, or shared office operations.The space is thoughtfully laid out and currently configured as a professional office environment, featuring a spacious reception and waiting area, one large executive office, six additional private offices, a large boardroom, printing/copy area, secure file storage room, kitchenette, men’s and women’s washrooms, and a utility room.The property offers flexible leasing options – tenants may lease the entire space or rent individual offices. A total of seven private offices are available, fully furnished with desks and ready for immediate occupancy, providing a convenient turnkey solution for professionals and small businesses.Located in a high-visibility downtown location with ample parking, including staff parking at the rear of the building and angled street parking at the front for clients and visitors.
Listing Information
For fast response, please email us via the “Inquiry Via Email” button with your contact information.
Listing MLS#:A2290908
5018 2 Street W,
Claresholm. T0L0T0
Liang Commercial Real Estate
To purchase a business or property, please visit "Our People", to find a commercial expert who specializes in the type of business or property you are looking for, speaks your language, and has an office in your city.
This listing is presented by CENTURY 21 BRAVO REALTY, courtesy of "First Place Realty" listing brokerage.
Google map



