101, 103, 105, 6302 66 Street , Lloydminster. T9V 3N6
Description
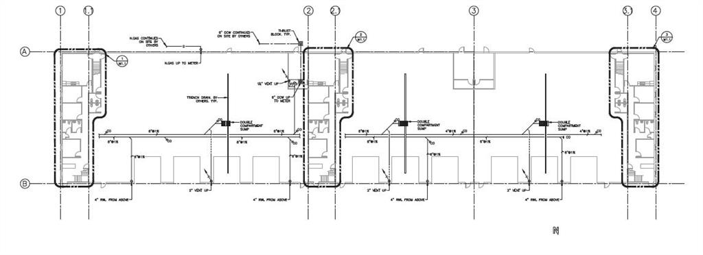
33,000 SF Investment Opportunity in Lloydminster comprised of 3 Units: Unit 105 (12,000 SF Main Floor and 1,400 SF 2nd Floor Office, totaling 13,400 SF), Unit 103 (8,000 SF Main Floor and 1,400 SF 2nd Floor Office totaling 9,400 SF), and Unit 101 (8,800 SF Main Floor and 1,400 SF 2nd Floor Office totaling 10,200 SF). All units feature identical office layout, featuring lunchroom facilities, boardroom, and 6 private offices. There is paved parking in front, fenced, concrete sidewalk and aprons along bay door side. Yard lighting. Telus fibre available. The Building features an upgraded fire suppression system; Warehouse and offices are sprinklered with multi-zone control. Built in 2014. Two power services - 1,200 Amp, 3 Phase (Main) and 1,400 Amp, 600V (Sub). Forced air furnaces and a/c in office areas ad Natural Gas tube heaters in warehouse. Features 20’ ceiling heights and overhead grade doors in each unit: Unit 101 - (3) Grade 16’x16’, Unit 103 - (3) Grade 16’x16’, and Unit 105 - (4) Grade 16’x16’.
Listing Information
For fast response, please email us via the “Inquiry Via Email” button with your contact information.
Listing MLS#:A2274454
101, 103, 105, 6302 66 Street ,
Lloydminster. T9V 3N6
Liang Commercial Real Estate
To purchase a business or property, please visit "Our People", to find a commercial expert who specializes in the type of business or property you are looking for, speaks your language, and has an office in your city.
This listing is presented by CENTURY 21 BRAVO REALTY, courtesy of "ComFree" listing brokerage.
Google map



