H, 7139 40 Street SE, Calgary. T2C2H7
Description
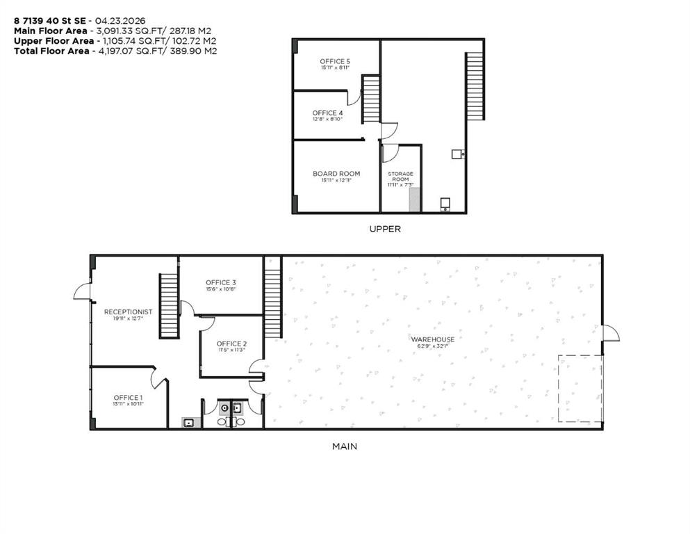
This versatile industrial property is located in the heart of Foothills Industrial Park in Southeast Calgary, offering immediate access to major transportation arteries including Barlow Trail SE, Glenmore Trail, and Deerfoot Trail. This industrial space is ideal for a business on the move and growing! It can also make a great investment for an industrial investor. PROPERTY HIGHLIGHTS INCLUDE - Over 4100 SQ FT of usable space with a ware house featuring 22 FOOT CEILINGS and a 14' by 12' GARAGE DOOR. The area of the warehouse is approximately 2100 SQ FT. The main floor (INCLUDING WAREHOUSE) measures at 3091 SQ FT with a 1105 SQ FT mezzanine. Three main floor offices, a large reception / sales area, and two bathrooms complete the floor. Upstairs find abundant storage, a potential boardroom and two more offices. The condo corporation is installing a new roof. Dedicated parking stalls, scramble parking and lots of yard in the back. Book a tour today.
Listing Information
For fast response, please email us via the “Inquiry Via Email” button with your contact information.
Listing MLS#:A2305229
H, 7139 40 Street SE,
Calgary. T2C2H7
Liang Commercial Real Estate
To purchase a business or property, please visit "Our People", to find a commercial expert who specializes in the type of business or property you are looking for, speaks your language, and has an office in your city.
This listing is presented by CENTURY 21 BRAVO REALTY, courtesy of "CIR Realty" listing brokerage.
Google map



