218 Crowchild Trail NW, Calgary. T2N 2R2
Description
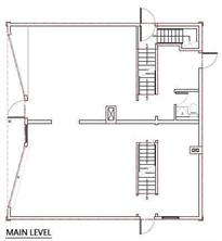
Premium Exposure: High profile stand-alone commercial building available for sale in a central NW location on a prominent commuter traffic route. City of Calgary traffic counts for this section of Crowchild are 79,000 vehicles per average weekday (2-way traffic count). Static billboards with this type of exposure rent in a range of $3,300 to $3,800 per month. This exposure and building branding opportunity will create immediate local brand and location awareness. Flexible Zoning: The Commercial Neighbourhood 1 (C-N1) zoning allows for a wide range of permitted uses such as retail, professional (medical & medical adjacent), office, and consumer services. Property & Layout: This is an approximately 6,388 SF site with a 2 storey commercial building measuring 2,111 SF above grade (main & 2nd level) plus 1,171 SF lower level space (storage) for a total usable of 3,282 SF. There is a basic storage garage on site. This Subject Property has 10 designated surface parking stalls with additional street parking. The current occupant is a retail business with an open plan on the main level. 2nd level includes additional retail space plus staff kitchen, private office & washroom. The lower level is primarily used for inventory storage. Note: The current occupant of the Premises will be relocating so we can accommodate vacant possession for an owner/user. Vacant possession negotiable for 1st Quarter of 2026.
Listing Information
For fast response, please email us via the “Inquiry Via Email” button with your contact information.
Listing MLS#:A2255151
218 Crowchild Trail NW,
Calgary. T2N 2R2
Liang Commercial Real Estate
To purchase a business or property, please visit "Our People", to find a commercial expert who specializes in the type of business or property you are looking for, speaks your language, and has an office in your city.
This listing is presented by CENTURY 21 BRAVO REALTY, courtesy of "CDN Global Advisors Ltd." listing brokerage.
Google map



