7201 48 Avenue , Stettler. T0C 2L0
Description
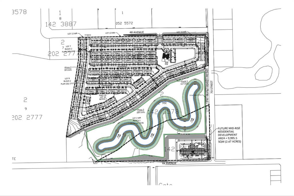
Prime development opportunity in the growing community of Stettler, Alberta. This vacant commercial parcel offers excellent visibility and convenient access to local amenities, with a proposed site plan in place for multi-family residential development. The property is ideally situated close to schools, shopping, healthcare, and recreation, making it well suited for future rental or condominium projects. With strong demand for quality housing in the area, this site presents a turnkey opportunity for builders and investors looking to capitalize on Stettler’s continued growth. MLS A2261501 7002 44 Ave is also available.
Listing Information
For fast response, please email us via the “Inquiry Via Email” button with your contact information.
Listing MLS#:A2261507
7201 48 Avenue ,
Stettler. T0C 2L0
Liang Commercial Real Estate
To purchase a business or property, please visit "Our People", to find a commercial expert who specializes in the type of business or property you are looking for, speaks your language, and has an office in your city.
This listing is presented by CENTURY 21 BRAVO REALTY, courtesy of "CIR Realty" listing brokerage.
Google map



