4832 20 Avenue NW, Calgary. T3B 0V3
Description
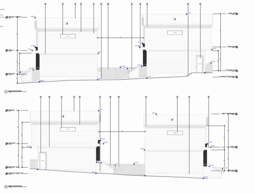
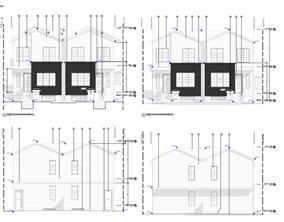
Arriving August 2026 in prime Montgomery, this Modern Courtyard 4-Plex presents a superior 8-unit investment asset comprising four 3-bedroom, 2.5-bathroom upper homes and four 1-bedroom, 1-bathroom legal basement suites complete with full kitchens and in-suite laundry. Purpose-built to qualify for CMHC MLI-Select financing through the Energy Efficiency pathway, this project offers investors favorable terms without the need for rent caps. The innovative duplex-courtyard-duplex layout delivers a quiet, low-density feel with exceptional privacy, abundant natural light, and generous outdoor separation—unique design elements that enhance livability and support higher rental income. Operational management is optimized via a separate mechanical room and full sub-metering, featuring 8 individual gas, water, and electric meters. The exterior includes thoughtfully landscaped outdoor areas designed for functionality and privacy, along with 4 dedicated parking stalls equipped with EV rough-ins. Buyers have the opportunity to customize finishes to preference prior to completion. Located steps from local schools, Shouldice Park, and the Bow River pathways, the property offers fast access to the University of Calgary, Foothills Hospital, and Market Mall, and is under 10 minutes to WinSport and the Trans-Canada Highway for easy mountain getaways, being just 1 hour to Canmore and 1 hour 15 minutes to Banff.
Listing Information
For fast response, please email us via the “Inquiry Via Email” button with your contact information.
Listing MLS#:A2267560
4832 20 Avenue NW,
Calgary. T3B 0V3
Liang Commercial Real Estate
To purchase a business or property, please visit "Our People", to find a commercial expert who specializes in the type of business or property you are looking for, speaks your language, and has an office in your city.
This listing is presented by CENTURY 21 BRAVO REALTY, courtesy of "Grand Realty" listing brokerage.
Google map



