5645 Lakeside Way , Innisfail. T4G 0H4
Description
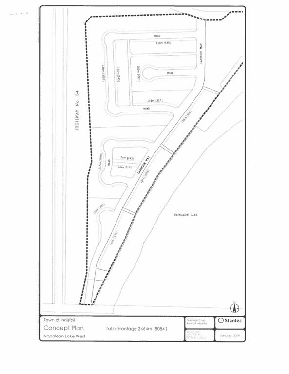
Endless opportunity awaits in Innisfail with this prime 6.57-acre development parcel ideally located within town limits along busy Hwy 42 and directly across from the prestigious 27 hole Innisfail Golf Club, offering exceptional exposure, accessibility, and long-term growth potential. Zoned R-3, this property presents a wide range of development possibilities including single-family homes, multi-family projects, commerical or innovative mixed-use concepts (subject to town approval), making it highly attractive for builders, investors, and developers looking to capitalize on a strategic location. A standout feature is the rare Napoleon Lake frontage, adding natural beauty, premium lot potential, and enhanced market appeal to any future project. With strong visibility, high traffic counts, and proximity to key amenities, this parcel is perfectly positioned for success in a growing community. Innisfail continues to attract attention for its balance of small-town charm and modern convenience, offering parks, recreation, strong local economy, and easy access to major transportation routes—making it not only a smart investment, but a fantastic place to live, build, and grow.
Listing Information
For fast response, please email us via the “Inquiry Via Email” button with your contact information.
Listing MLS#:A2299328
5645 Lakeside Way ,
Innisfail. T4G 0H4
Liang Commercial Real Estate
To purchase a business or property, please visit "Our People", to find a commercial expert who specializes in the type of business or property you are looking for, speaks your language, and has an office in your city.
This listing is presented by CENTURY 21 BRAVO REALTY, courtesy of "RE/MAX real estate central alberta" listing brokerage.
Google map



