260 Rock Lake Drive NW, Calgary. T3G 5Z4
Description
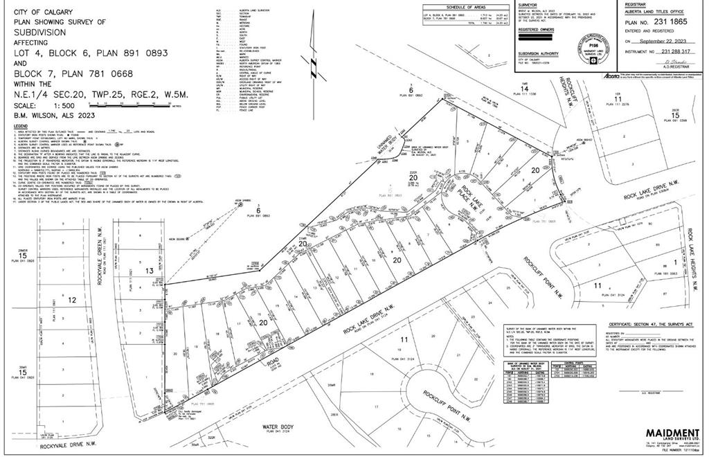
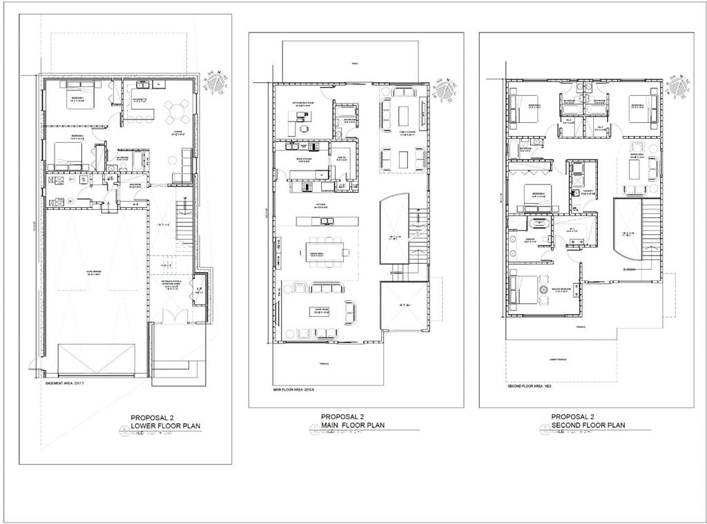
6512 sq/ft Walkout Lot, No Building commitment, bring your own builder. 3 lots available, lot 17, 18 & 12. Build your dream custom home 3000-5000 sq/ft on an expansive 6512 sq ft (43 ft Front, 151 ft depth) Estate lot in sought-after Rocky Ridge, NW Calgary, perfectly positioned across from a tranquil pond and backing onto green space and trees. This rare homesite offers true four-season serenity, direct access to pathways, and sweeping Rocky Mountain views that frame your backyard and fill your main living spaces with natural beauty. Set high on Calgary’s northwest ridge, your custom design can take full advantage of the rolling landscape—imagine a sun-filled great room with wall-to-wall windows, a gourmet kitchen and a covered deck overlooking the treetops. Morning walks around the wetland ponds, evenings watching the sunset over the Rockies, and easy access to Rocky Ridge’s extensive pathways, parks, and Ranch Centre amenities create an unparalleled lifestyle that feels like a retreat while still being minutes from major routes, C-Train access, and northwest shopping and services.
Listing Information
For fast response, please email us via the “Inquiry Via Email” button with your contact information.
Listing MLS#:A2289030
260 Rock Lake Drive NW,
Calgary. T3G 5Z4
Liang Commercial Real Estate
To purchase a business or property, please visit "Our People", to find a commercial expert who specializes in the type of business or property you are looking for, speaks your language, and has an office in your city.
This listing is presented by CENTURY 21 BRAVO REALTY, courtesy of "REMAX Innovations" listing brokerage.
Google map



