5901 50 Avenue , Innisfail. T4G 1R7
Description
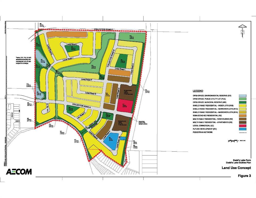
ATTENTION DEVELOPERS & INVESTORS!! 136 Acres of PRIME Residential Mixed Development land with 1785 feet of Dodd's Lake Shoreline in the Heart of Innisfail Alberta. This unique property is an Excellent investment and Development opportunity. An Extensive study with outline plan is in place with the current local ASP & Geo Technical Report. There are approximately 310 single detached dwellings, 65 semi-detached dwellings, 104 row housing units and 257 apartment units with a small neighborhood commercial parcel included in the plan. The properties wetlands and creek only add to the charm that this neighborhood will be developed into with the town fully supportive to any new developers plans for build out. Don't miss this rare opportunity! "Visit REALTOR® website for additional information"
Listing Information
For fast response, please email us via the “Inquiry Via Email” button with your contact information.
Listing MLS#:A2291188
5901 50 Avenue ,
Innisfail. T4G 1R7
Liang Commercial Real Estate
To purchase a business or property, please visit "Our People", to find a commercial expert who specializes in the type of business or property you are looking for, speaks your language, and has an office in your city.
This listing is presented by CENTURY 21 BRAVO REALTY, courtesy of "Century 21 All Stars Realty Ltd." listing brokerage.
Google map



