4220 Centre Street NE, Calgary. T2E 2Y9
Description
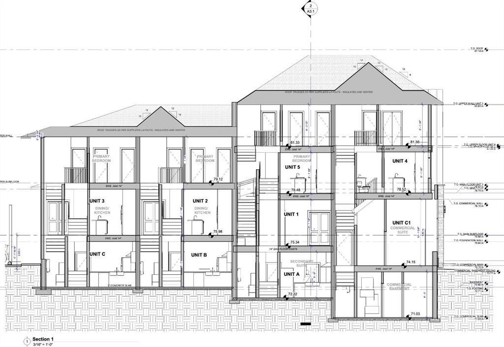
Exceptional MU-1 Development Opportunity – DP Approved & Ready to Build! Prime inner-city CORNER LOT offering MU-1 zoning—allowing for mixed-use development with commercial at grade and up to 6 storeys (5 residential above). Positioned on a high-exposure intersection with strong street visibility, this is a rare opportunity for builders and investors to step into a fully entitled development with no delays, demolition, or uncertainty remaining. The offering includes a fully approved Development Permit for a thoughtfully designed project featuring a 4-plex with 8 residential units plus 2 commercial spaces, along with a 4-stall carport providing convenient parking solutions. All architectural drawings, DSSP documents, and supporting planning materials are included, significantly reducing soft costs and accelerating the development timeline. Site preparation is fully complete, including demolition, asbestos remediation, and utility removals—allowing for immediate transition to excavation and construction. This is a true ready-to-build opportunity with substantial value already invested into approvals and pre-development work. Located in a rapidly evolving inner-city area, the site benefits from strong redevelopment momentum, surrounding investment activity, and long-term growth fundamentals. The MU-1 zoning provides exceptional flexibility for mixed-use design, making this an ideal opportunity for both experienced developers and long-term investors seeking scalable returns. This offering includes the land, fully approved plans, permits, and all completed pre-construction work—delivering a streamlined, near turn-key development opportunity in a high-demand location. A rare chance to acquire a fully prepared project and bring it to completion.
Listing Information
For fast response, please email us via the “Inquiry Via Email” button with your contact information.
Listing MLS#:A2300778
4220 Centre Street NE,
Calgary. T2E 2Y9
Liang Commercial Real Estate
To purchase a business or property, please visit "Our People", to find a commercial expert who specializes in the type of business or property you are looking for, speaks your language, and has an office in your city.
This listing is presented by CENTURY 21 BRAVO REALTY, courtesy of "Jessica Chan Real Estate & Management Inc." listing brokerage.
Google map



