5230 44 Avenue , Spirit River. T0H 3G0
Description
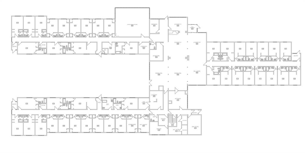
Pleasant View Lodge in Spirit River, Alberta, presents an exceptional opportunity for investors and assisted-living operators to acquire a well-maintained, institutional-quality 42-suite care facility situated on 2.32 acres of R4 High Density Residential land. This 22,177 sq. ft. building has been consistently upgraded, including newer boilers (2015), hot water tanks (2022/2023), modern double-glazed vinyl windows, and a torch-on roof completed in 2018. Now vacant and ready for redevelopment or immediate occupancy, the property features private bathrooms in every suite—26 with full showers or tubs—plus two staff washrooms, two assisted bathing rooms, a commercial kitchen with industrial equipment, extensive common areas, commercial laundry, office space, a dedicated hair salon, and a 26’x40’ maintenance shop. With ample parking, mature trees, and a peaceful setting near parks and services, and located just 50 minutes from Grande Prairie with direct access to essential amenities, this property offers exceptional potential for seniors housing, specialized care, workforce accommodation, or multi-suite residential conversion.
Listing Information
For fast response, please email us via the “Inquiry Via Email” button with your contact information.
Listing MLS#:A2273553
5230 44 Avenue ,
Spirit River. T0H 3G0
Liang Commercial Real Estate
To purchase a business or property, please visit "Our People", to find a commercial expert who specializes in the type of business or property you are looking for, speaks your language, and has an office in your city.
This listing is presented by CENTURY 21 BRAVO REALTY, courtesy of "Sutton Group Grande Prairie Professionals" listing brokerage.
Google map



