5230 44 Avenue , Spirit River. T0H 3G0
Description
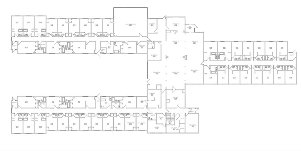
Pleasant View Lodge in Spirit River, Alberta presents a rare opportunity to acquire a well-maintained, institutional-quality 42-suite care facility situated on 2.32 acres of R4 High Density Residential land priced at only $45/sqft!. Encompassing 22,177 sq. ft., the building has seen extensive upgrades including boilers (2015), hot water tanks (2022/2023), a torch-on roof (2018), and modern double-glazed vinyl windows, offering a solid, low-risk asset base. Now vacant and ready for immediate occupancy or repositioning, the property features private bathrooms in every suite (26 with full tubs or showers), along with a commercial kitchen, expansive common areas, assisted bathing rooms, staff facilities, office space, commercial laundry, a hair salon, and a 26’ x 40’ maintenance shop. With ample parking, mature landscaping, and a quiet setting near parks and services just 50 minutes from Grande Prairie, this flexible property is ideally suited for seniors housing, assisted living, specialized care, workforce accommodation, or multi-family conversion.
Listing Information
For fast response, please email us via the “Inquiry Via Email” button with your contact information.
Listing MLS#:A2300850
5230 44 Avenue ,
Spirit River. T0H 3G0
Liang Commercial Real Estate
To purchase a business or property, please visit "Our People", to find a commercial expert who specializes in the type of business or property you are looking for, speaks your language, and has an office in your city.
This listing is presented by CENTURY 21 BRAVO REALTY, courtesy of "Sutton Group Grande Prairie Professionals" listing brokerage.
Google map



