8416 RGE RD 1-3 , Rural Pincher Creek No. 9, M.D. of. T0K 0P0
Description
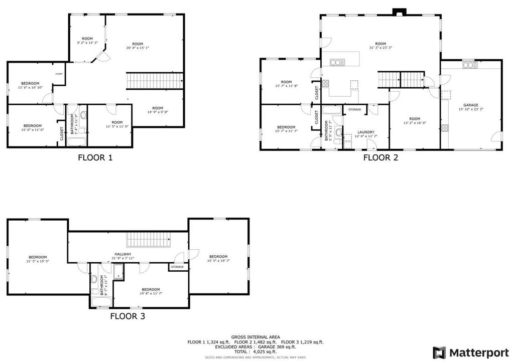
OLDMAN RIVERFRONT *** 133 Acres w/home: SW Alberta, Canada. RANCHO DEL RIO: The entire west boundary of this quarter section is the meandering Oldman River. This river, named for Na’pi in native legend, the great spirit and protector, carved its way through time creating a magnificent valley between the Porcupine Hills and the Rocky Mountain Range. Private access to world class fly-fishing in SW Alberta. This pristine stretch of river features an abundance of trout water and a variety of fish and water types. Panoramic, unobstructed views of the iconic Rocky Mountains and Oldman River Valley. This custom quality Erickson home built in 2000, features passive solar design, 1 1/2 storey style, low maintenance exterior, 6 bedrooms, den/office, which can be used as another bedroom, totaling 4400 square feet of developed area on 3 levels. A grid-tied 2.4 KW Skystream wind turbine and 6 panel solar array (totaling 1590 watts), was added later for improved energy efficiency. Enjoy barrier free entry to main floor, generous sized open concept vaulted great room, wood-burning fireplace on main, gas fireplace on lower level, large SW facing windows c/w roll shutters, ICF foundation, zoned in-floor hydronic heating, music studio, cold room, large west facing deck with composite decking and perimeter cedar bench seating and outdoor entertaining patio area c/w stone outdoor fireplace. Outbuildings include a 24 x 48 foot insulated, heated triple detached garage c/w workshop, a 40 x 64 foot pole building c/w electricity and large 16 x 12 foot high overhead door, two 12×16 guest cabins c/w wood burning stoves, steel shed, two animal shelters, playhouse and a chicken coop. A large garden, outdoor arena, corrals, newly fenced and cross-fenced perimeter provides a turnkey operation to new owners. Impressive 8 gallon/minute drilled well and new septic tank in 2020. Established shelter belt provides an oasis for migratory birds and abundant wildlife. Existing irrigation licence for 12,346 cubic meters annually can be transferred to new owner. Access this property from the end of a well maintained MD road. BC border less than an hour to the west and Montana border only 75 minutes to the south. Waterton Park, Castle Crown Wilderness Area, Crowsnest Pass and the Porcupine Hills all within a short driving distance. This property would make an ideal multi-family and/or legacy multi generational, year round home or retreat! SEE VIDEO and 3D Walk Through. Additional photos of private river valley, guest cabins and outbuildings available on request.
Listing Information
For fast response, please email us via the “Inquiry Via Email” button with your contact information.
Listing MLS#:A2290379
8416 RGE RD 1-3 ,
Rural Pincher Creek No. 9, M.D. of. T0K 0P0
Liang Commercial Real Estate
To purchase a business or property, please visit "Our People", to find a commercial expert who specializes in the type of business or property you are looking for, speaks your language, and has an office in your city.
This listing is presented by CENTURY 21 BRAVO REALTY, courtesy of "MAVERICK REALTY" listing brokerage.
Google map



